급경사지 지반공학적 특성
- 자료실/수자원공학
- 2025. 6. 26.
반응형

급경사지 지반공학적 특성
- 암종의 공학적 분류는 지질학적인 암석의 종류와는 무관하게 암석의 강도와 전반적인 균열상태 등을 감안하여 수행하는 방법으로, 시추코어의 형상, 탄성파속도, 일축압축강도시험, 표준관입시험, 탄성파속도 등을 병행하여 결정하기도 하며, 일반적으로 극경암, 경암, 보통암, 연암, 풍화암 등으로 구분되며, 관리기관별로 공학적 분류 기준이 상이한 경우가 많다.
1. 강도에 따른 암종 분류법
가. 일축압축강도시험
- 정의 : 원통형 또는 각주 형태의 암석 시험편에 구속압(confining pressure)이 없는 상태에서 압축력을 작용시켜 파괴가 일어났을 때의 하중(Pc)을 시험편의 단면적(A)로 나눈 값을 일축압축강도라고 함(Sc=Pc/A)
- 특징 : 일축압축시험을 통해 얻어진 일축압축강도는 시험편의 형태, 크기, 함수율, 재하속도, 재하면의 거칠기 등과 같은 요소에 의해 영향을 받음

나. 점재하시험
- 정의 : 시료에 점하중을 가하여 시료 내부의 인장강도가 발생하게 해서 암석을 깨뜨리는 방법으로 점재하시험과 일축압축강도와는 거의 완전한 선형관계가 있음
- 특징 : 암판정을 정량적으로 쉽고 빠르게 현장에서 수행할 수 있을 뿐만 아니라 일축 압축강도를 비교적 정밀하게 추정할 수 있는 유용한 방법임

2. 탄성파속도에 따른 암종 분류법
- 정의 : 지표면이나 시추공 등에 설치된 탄성파 발생장치를 이용하여 인위적으로 탄성파를 발생시킨 후 지층 경계면에서 반사 또는 굴절되어 되돌아온 파동을 수진하여 지하의 지질구조 내지 지층의 물리적 특성을 분석하는 방법
- 특징 : 탄성파 자료해석 시 제삭된 단면 또는 입체로부터 탄성파의 진포와 위상, 반사층의 연속성과 배열 형태, 속도 정보 등을 통합적으로 분석하여 지층의 구조 및 층서, 물성, 유체 정보 등을 해석

반응형
3. 암석코아 상태에 따른 암종 분류
가. 코어회수율(T.C.R)
- 정의 : 현장에서 지반의 물성 및 역학적 특성을 파악하기 위해서 코어 채취기를 이용하여 암석시료를 채취할 때 파쇄되지 않은 상태로 회수되는 정도를 의미하며 암반의 구성에 따라 시추안 암석의 길이에 대한 회수된 코어 길이를 백분율로 나타낸것
- 특징 : 암성의 강도 추정, R.Q.D. 판정, 절리와 층리의 간격 파악, 절리상태 파악, 함유물의 유무 판정 등에 활용 가능
나. 암질지수(R.Q.D)
- 정의 : 절리의 다수를 나타내는 지표로서 R.Q.D. 가 크면 암반의 상태가 양호하게 안정된 상태이고, 이 반대가 되면 균열, 절리가 심한 불량한 상태의 암반을 의미함. 시추코어 중 100mm 이상 되는 코어 길이의 합을 시추길이로 나누어 백분율로 표시한 값으로 암질의 상태를 나타내는데 사용
- 특징 : 세계적으로 널리 보편화되어 있어 신뢰성이 높고, 측정방법이 쉬우며, 직접 육안으로 판정이 가능하고 급경사지 구배 결정, 암반의 분류 등을 결정시 활용하고 있음

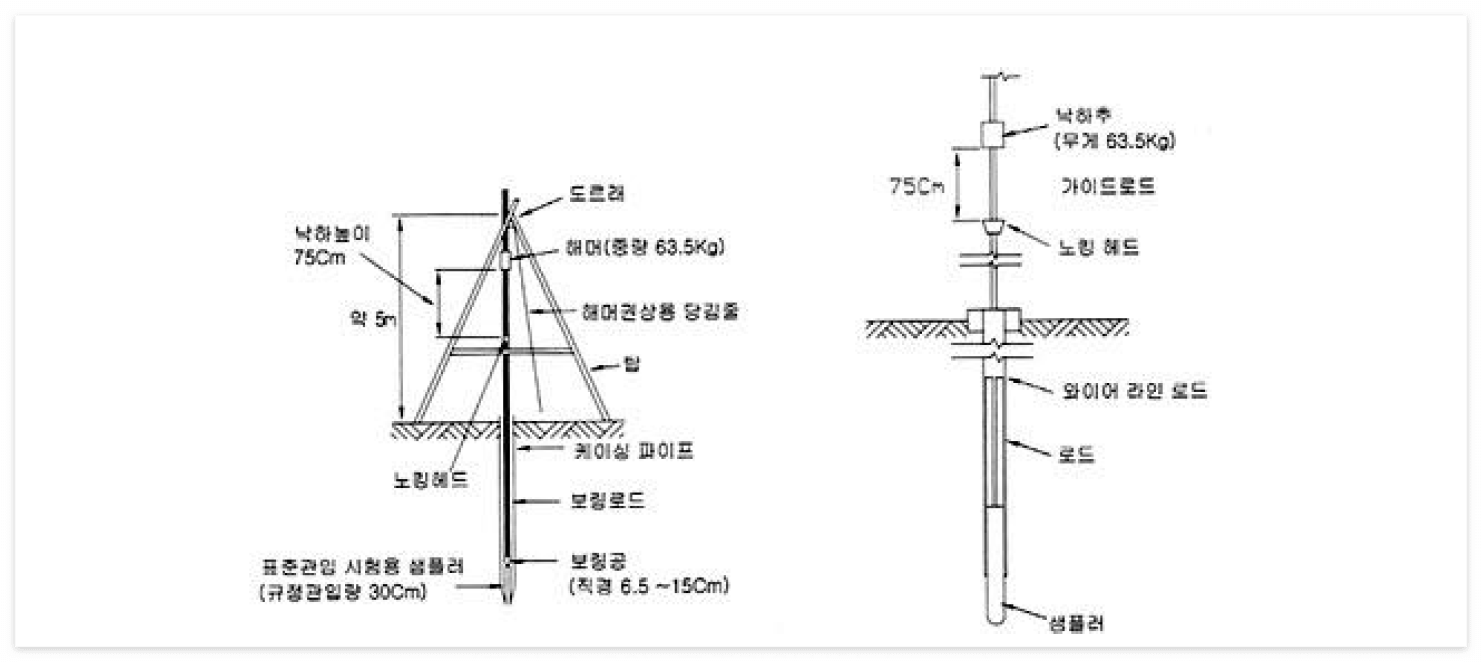
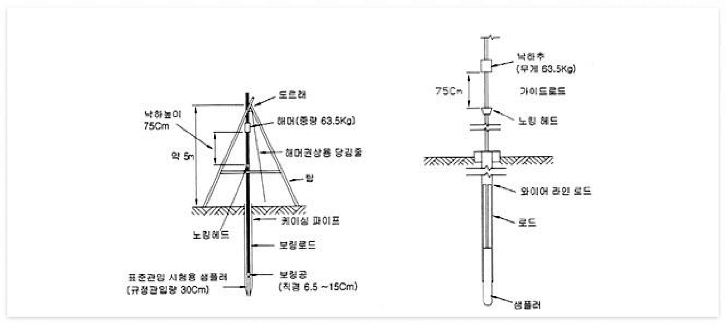
4. 표준관입시험에 따른 암종 분류
- 정의 : 원위치에서 흑의 연경도, 상대밀도 등을 파악하기 위해 N값을 측정하는 관입시험으로 지반의 지지력을 측정하는 시험임
- 특징 : 지반의 강도, 상대밀도, 내부마찰각 등 지반정수를 수정. 사질토에서 N값은 상대밀도, 내부마찰각 산정. 점토에서 N값은 연경도, 전단강도, 일축압축강도 산정

5. 간편시험법에 따른 암종 분류
가. 슈미트해머 시험
- 정의 : 암반 내지 콘크리트 표면경도를 측정하여 이 측정치로부터 대상체의 압축강도를 비파괴로 판정하는 방법으로 반발경도법은 타격법 중 하나의 방법으로 대상체 표면을 햄머로 타격하여 표면의 반발경도를 측정함
- 특징 : 슈미트햄머로 타격 시 반발도와 대상체의 압축강도 사이에 특정 상관관계가 있다는 실험적 경험을 토대로, 타격 시 햄머 내의 중추 반동량을 반발도로 표시하여 이를 이용해 압축강도를 추정함
나. 햄머타격 시험
- 정의 : 햄머 타격 시 부서짐 정도 내지 금속성 소리, 튕겨저 나오는 정도를 통해 암반을 주관적으로 분류
- 특징 : 풍화 정도 내지 암반 내 풍화된 절리면의 발달 유무를 현장에서 빠르게 추정할 수 있음
다. 육안식별
- 정의 : 암반이 가지고 있는 불연속면(절리, 층리, 단층 등)의 풍화 정도 및 균열을 발달 정도를 육안으로 확인함으로써 암반을 주관적으로 분류
- 특징 : 암반의 풍화 정도 및 균열 발달 상태를 쉽게 파악이 가능함
6. 암반 분류
- 암반의 특성에 따라 풍화암, 연암, 보통암, 경암, 극경암으로 구분하여, 탄성파속도를 고려하여 대표적 암종 분류를 제시하였다.
- 지반조사 표준품셈 암반 분류
| 암반 분류 | 시추상황 (비트기준) |
대표암종 (신선암 기준) |
풍화도 (광물 변질도) |
암석일축 압축강도 (MPa) |
시험편 P파속도 (Km/sec) |
현장암반 P파속도 (Km/sec) |
| 풍화암 | Matal crown bit로 굴삭, 무수보링 가능 | - | 암 내부까지 풍화 광물 대부분 변질 | 5이하 | 1.8이하 | 1.2이하 |
| 연암 | Metal crwon bit로 굴삭 가능, 코어 회수율 낮음 | 미고결 퇴적암 | 암 내부까지 풍화, 광불 부분 변질 | 30이하 | 3.3이하 | 2.5이하 |
| 보통암 | Diamond bit로 굴삭, Metal crown bit로 국삭시 비효율 | 사암, 사질셰일 편암류, 화산 쇄설암 | 불면속면을 따라 다소 풍화 진행, 광물 일부 변색 | 30~80 | 3.0~4.8 | 2.0~3.5 |
| 경암 | Diamond bit로만 굴삭 | 역암, 편마암류, 화성암류 | 불연속면을 따라 약간 풍화 변질, 암 내부는 신선 | 80~150 | 4.3~5.7 | 3.1~4.8 |
| 극경암 | Diamond bit의 마모율이 높음 | 규질암류 Hornfels Chert |
대단히 신선, 광물 변질 없음 | 150이상 | 5.2이상 | 4.5이상 |
| 파쇄대 | 그라우팅이나 2중 케이싱 설치가 필요한 붕괴암반 | 단층, 관입, 물의작용 등에 기인한 파쇄대 | - | - | - | 상대적 저속도대 |
출처 : 급경사지 관리 실무편람
반응형
'자료실 > 수자원공학' 카테고리의 다른 글
| 급경사지 붕괴 수리적 요인 (0) | 2025.07.01 |
|---|---|
| 급경사지 붕괴 지질학적 요인 (0) | 2025.06.30 |
| 급경사지 지질학적 특성 (0) | 2025.06.25 |
| 급경사지 지질·지반공학적 특성 및 붕괴요인 (0) | 2025.06.23 |
| 급경사지 인공비탈면 (0) | 2025.06.23 |