침투측구의 시공 및 유지관리
- 자료실/수자원공학
- 2023. 6. 26.
(1) 개요
본 장은 침투시설중 하나인 침투측구 설치에 따른 일반사항, 재료, 시공에 필요한 표준적인 방법을 정한 것이다.
측구의 주변을 쇄석으로 충전하고 우수를 측면 및 저면으로부터 침투시키는 침투측구의 설계, 시공 및 유지관리에 관한 기준을 규정한다.
(2) 설계요구사항
침투측구의 설계시에는 다음과 같은 항목을 고려하여야 한다.
① 적용지역
② 일반구조
③ 경사
⑤ 점검사항
침투측구의 적용지역은 설치대상 및 집수대상에 따라 상이하므로 이에 대한 고려가 필요하다.
침투측구의 적용 예
| 설치장소의 이용 | 집수대상 | 침투측구 |
| 단독주택 | 지붕 | |
| 건물주택(정원, 주차장) | O | |
| 주택단지, 사무소, 학교 등 | 지붕 | O |
| 건물주변(식재지, 주차장, 자전거 주차장, 도로) | O | |
| 공원 등 | 식재지(녹지), 도로, 주차장, 운동장 | O |
| 도로 | 보·차도 구별이 있는 도로의 차도 | O |
| 보·차도 구별이 있는 도로의 보도 | O | |
| 보·차도 구별이 없는 도로 | O |
시설 구조는 도로설계편람 및 도로공사표준시방서 등에 따라 다음 사항을 고려하여 설치한다
① 침투측구는 설치장소에 따라 운전자나 보행자에 불안감과 교통 사고의 위험 요소가 될 수 있으므로 시가지나 교통량이 많은 도로에서는 덮개를 반드시 설치하여야 한다. 특히 측구에 덮개를 덮어 보도로 사용할 때는 측구와 보도를 겸하므로 덮개의 파손에 유의해야 한다.
② I.C나 분리차선, 시가지구간, 녹지대 및 부체도로에 지형여건을 감안하여 설치한다.
③ 유출량 및 측구의 경사에 따라 필요한 통수단면을 설정하여 침투측구의 규격을 결정한다.
침투측구는 횡단경사 및 종단경사로 구분하여 시설을 설치하여야 한다.
① 횡단경사의 경우 설계도에 별도의 명시가 없는 한, 도로쪽에서 보·차도 경계블록쪽으로 2 ~ 4% 편경사를 두어야 하며, 도로 횡단경사를 편경사로 시공하는 경우에는 높은쪽 측구를 도로 횡단경사에 맞추어 역경사로 시공한다.
② 종단경사는 경사지의 경우 도로의 종단경사와 동일하게 적용하며, 평지의 경우에는 두 빗물받이 사이의 중앙점에서 양쪽으로 0.25% 이상 경사를 두어 배수가 원활히 되도록 해야 한다.
시설 설계시 다음과 같은 점검항목을 고려하여야 한다.
① 침투측구의 이상유무
② 침투측구의 퇴사 퇴적 상태
③ 포장노면의 균열 상황 및 변화
④ 자갈도로면의 요철 상황 및 변화
⑤ 월류장소나 침수상황
⑥ 도로주변으로의 물 및 토사의 유입상황
(3) 시공 전 주의 사항
침투측구는 시공 환경조간에 따라 침투능력의 저하, 유지관리 등에 대한 문제점이 발생될 우려가 있으므로 이에 대한 고려가 필요하다.
침투측구의 시공은 하부층이 동결되었거나 기온이 4℃ 이하인 경우와 30℃ 이상인 경우에는 시공해서는 안된다.
(4) 구성요소
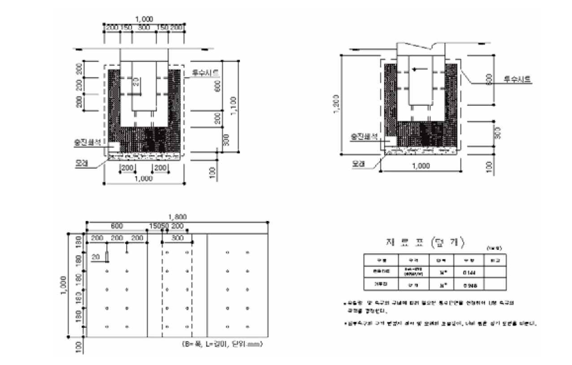
본체
침투측구는 형상, 내부 폭, 투수구조 등을 고려하여 시설을 설치하도록 한다.

① 침투측구의 형상은 보통 일반측구(U자 측구 등)과 비슷하며 재질은 콘크리트를 표준으로 한다.
② 내부 폭은 통수능력과 청소 등의 유지관리를 고려하여 폭 140 ~ 450mm 를 표준으로 한다.
③ 투수구조는 측면이나 저면부를 유공 또는 다공성으로 한다. 저면부는 막힘 등이 일어나기 쉽기 때문에 측면부를 투수구조로 하는 것이 중요하다. 유공의 경우 유공경은 충전쇄석의 입도를 고려하여 20mm 이하로 하고, 개공률은 장기적인 측면을 고려하여 0.5% 이상을 표준으로 한다. 다공성의 경우 투수계수는 3 ×10-1 cm/s 이상으로 하고 공극률은 일반적으로 15 ~ 30% 정도로 한다.
모래
모래는 굴착 바닥 침투면이 시공시에 다짐이 됨으로써 침투능력이 저하되는 현상을 방지하기 위해 사용되어지므로 모래 선정시 종류, 모래 두께, 지반 특성에 유의하여 설치하도록 한다.
침투통, 침투트렌치, 침투측구 등에 사용되는 모래는 침투통의 내용과 같으므로 생략하기로 한다.
충전쇄석
충전쇄석은 시설 본체와 침투면(굴착면) 사이에 충전하고 침투면의 보호와 저류량 및 설계수두의 확보를 도모하기 위하여 사용되므로 재료 선정시 입도, 종류, 형상, 충전 높이 등을 고려하여야 한다.
충천쇄석의 일반적인 사항은 침투용의 내용과 같다. 다만 충전쇄석의 폭 및 충전높이, 기타내용은 다음과 같이 고려하여야 한다.
① 충전쇄석의 폭은 측구 바깥 폭보다 200mm 이상 크게 하고 저면부의 두께는 100mm 이상을 표준으로 한다.
② 충전 높이는 설계수두와 상부의 토지이용을 고려하여 결정한다.
투수시트
투수시트는 토사가 쇄석안으로 유입되는 것을 막음과 동시에 지면의 함몰을 막기 위해 사용되며, 시트내 인장강도, 투수계수, 두께, 재질 등을 고려하여야 한다.
투수시트의 일반적인 사항은 침투통의 내용과 같다.
(5) 시공
침투측구의 시공방법 또한 침투통의 시공방법과 유사하므로 침투통의 시공편을 참고하기로 하며, 시설 설치시공시에는 다음 해설을 따르도록 한다.
침투측구의 경우도 침투통과 시공순서가 거의 유사하나, 시설공 설치단계에서 침투측구의 접속부는 모르타르를 처리하며, 측구내에 토사 등이 유입되지 않도록 가설 덮개를 덮어야 한다.
(6) 유지관리
침투능력 확인
준공에 있어서 몇 개의 시설을 선정하여 주입시험을 실시하여 침투능력을 확인하도록 한다.
시설내 2 ~ 3m 간격에서 토양 등에 지수벽을 만들면서 물을 주입하는 정수위법 또는 변수위법을 시험한다. 기능의 확인은 구간 선정시 기초자료가 되며, 지수벽의 치수효과에 대해서도 검증할 수 있으므로 이에 대한 검토가 필요하다.
유지관리
점검내용은 기능점검과 안전점검으로 분리할 수 있으며, 점검시에는 각각의 점검항목에 맞게 실시하여야 한다. 시설 유지관리의 경우 지형, 외부의 영향, 파손, 배수능력 부족 등의 영향인자에 대해서도 고려햐여야 한다.
① 침투측구의 점검항목으로는 점검년월일, 점검자 성명, 책임자, 점검장소, 총괄점검평가 및 침투측구의 내부, 외견상의 평가, 필요한 조치 등을 기재하여야 한다.
② 침투측구는 산간부에서는 낙엽이나 토사붕괴, 평지에서는 오물이나 토사의 퇴적에 의해 기능저하를 일으키기 쉽다.
③ 콘크리트 측구벽은 노면하중 등으로 쓰러지는 경우가 있으므로 지지대로 받치는 등 보강하는 것이 좋다.
④ 측구의 뚜껑이나 연석의 파손은 교통사고의 원인이 되는 수가 있으므로 조속히 교체 또는 보수를 하여야 한다.
⑤ 연결관이나 배수관은 하중이나 지반침하에 의해 파손되는 경우가 있으며 누수가 노상에 공동 등을 발생시켜 함몰사고의 원인이 되는 경우가 있다.
⑥ 배수능력이 부족할 경우에는 증개축을 고려할 필요가 있다.
출처 : 우수유출저감시설의 종류·구조·설치 및 유지관리 기준
'자료실 > 수자원공학' 카테고리의 다른 글
| 투수 아스팔트 콘크리트 포장 시공 및 유지관리 (0) | 2023.06.26 |
|---|---|
| 투수 시멘트 콘크리트 포장 시공 및 유지관리 (0) | 2023.06.26 |
| 침투트렌치의 시공 및 유지관리 (0) | 2023.06.24 |
| 침투통의 시공 및 유지관리 (0) | 2023.06.23 |
| 침투시설의 배치계획 (0) | 2023.06.23 |