침투트렌치의 시공 및 유지관리
- 자료실/수자원공학
- 2023. 6. 24.
(1) 개요
본 장은 침투시설 중 하나인 침투트렌치 설치에 따른 일반사항, 재료, 시공에 필요한 표준적인 방법을 정리한 것이다.
굴착한 도랑에 쇄석을 충전하고 그 중심에 침투통과 연결되는 유공관을 설치하여 우수를 통하게 하며, 쇄석의 측면 및 저면으로부터 지중으로 침투시키는 침투트렌치의 설계, 시공 및 유지관리에 관한 기준을 규정한다.
(2) 설계요구사항
침투트렌치의 설계시에는 다음과 같은 항목을 고려하여야 한다.
① 적용대상 우수관
② 시설의 일반구조
③ 위치선정
④ 매설심도
⑤ 유속 및 경사
⑥ 침투트렌치의 연장
⑦ 침투트렌치의 종단계획
적용대상 우수관은 우수관거로 이용되는 직경 300mm 이하의 우수관을 대상으로 선정한다.
침투트렌치의 적용 예
| 설치장소의 이용 | 집수대상 | 침투트렌치 |
| 단독주택 | 지붕 | O |
| 건물주택(정원, 주차장) | O | |
| 주택단지, 사무소, 학교 등 | 지붕 | O |
| 건물주변(식재지, 주차장, 자전거 주차장, 도로) | O | |
| 공원 등 | 식재지(녹지), 도로, 주차장, 운동장 | O |
| 도로 | 보·차도 구별이 있는 도로의 차도 | |
| 보·차도 구별이 있는 도로의 보도 | O | |
| 보·차도 구별이 없는 도로 |
침투트렌치는 하수도시설기준에 따라 다음 사항을 고려하여 설치한다.
① 자중, 적재하중, 수압, 토압, 풍압, 지진력, 적설하중 및 연약지반의 부마찰력 등에 대하여 구조상 안전하고 내구성이 있어야 한다.
② 지하수 침입의 염려가 없어야 하며, 내마모성 및 내부식성인 것으로 한다.
③ 지하수위가 높은 지점에 축조하는 구조물은 내부가 비어 있을때에도 부력에 안전하여야 한다.
위치선정은 하수도 시설기준에 따라 다음 사항을 고려하여 설치한다.
① 관거를 공공도로에 매설하는 경우에는 그 매설위치 및 깊이를 도로관리자와 협의하여야 한다. 사업을 실시할 때는 도로법 제40조에 의하여 도로관리자에게 점용원을 제출하고 허가를 받아야 한다. 또한 사전에 다른 매설물에 대해 충분히 조사하여 장해가 되는 구조물은 이설을 의뢰한다.
② 철도횡단의 경우에는 관거가 교통하중 및 진동을 직접 받지 않도록 충분한 깊이로 매설해야 한다. 그러나 종단경사의 특수성에 의하여 교통하중 및 진동이 작용하는 경우에는 관거에 직접 영향을 주지 않도록 방호공을 설치하여야 한다.
③ 관거를 사유지내 매설하는 경우에는 토지소유자와 협의하여야 한다. 지형 및 기타의 불가피한 이유로 관거를 사유도로 등의 사유지에 매설할 수 밖에 없는 경우에는 그 토지의 소유자와 협의 해 유지관리에 지장을 주지 않도록 지상권 설정 및 협의서 등의 필요한 조치를 취해야 한다.
- 모든 관로의 토피는 도로부의 경우 관 상단으로부터 1.2m 이상, 보도부의 경우는 1.0m 이상 확보되어야 한다.(연락관의 경우는 관 상단으로부터 0.6m 이상)
- 우수 관로는 관내 침전을 방지하기 위하여 계획하수량에 대하여 최소 0.8m/sec, 최대 3.0m/sec의 유속을 유지해야 하며, 관로의 유속이 3.0m/sec를 초과하는 경우에는 적절한 단차공을 설치하여 과도한 관벽마찰이나 하류부에서 유수가 분출하는 현상을 방지해야 한다.
- 침투트렌치의 최대 연장은 청소 등의 유지관리를 고려하여 관경의 120배 이하를 표준으로 한다.
- 종단경사는 투수관내로의 퇴적된 토사 등을 소통시킴과 동시에 막힘에 의해 침투능력이 저하되는 경우 통수기능을 보존하는 목적을 위해 필요하다. 투수관의 종단경사는 대체로 1~2% 정도로 하는 것을 표준으로 하며, 지형이나 규모에 따라 결정하는 경우도 있다.
- 충전쇄석의 종단경사는 설계수두를 균등하게 할 수 있는 의미에서 수평으로 하는 것이 바람직하나, 지형경사가 있는 경우 지형경사에 맞추는 것이 좋다.
(3) 시공 전 주의 사항
지하매설물조사 등 설치장소의 제약조건을 파악하는 것과 함께 주변의 지표면 상황이나 지형경사, 배수계통 등을 조사한다.
상·하수도, 가스, 전력선과 같은 라이프라인(Life-Line)등의 지하매설물이 있는 경우에는 시공 및 유지관리상 어려움이 발생할 수 있으므로 이에 대해 유의하여야 한다. 또한, 침투시설로부터 월류수를 방류하는 대상이 공공하수도 등인 경우에 기존 관, 공공하수도의 높이와 깊이, 길이에 대하여 조사하여야 한다. 침투통의 시공은 하부층이 동결되었거나 기온이 4℃ 이하인 경우와 30℃ 이상인 경우에는 시공해서는 안된다.
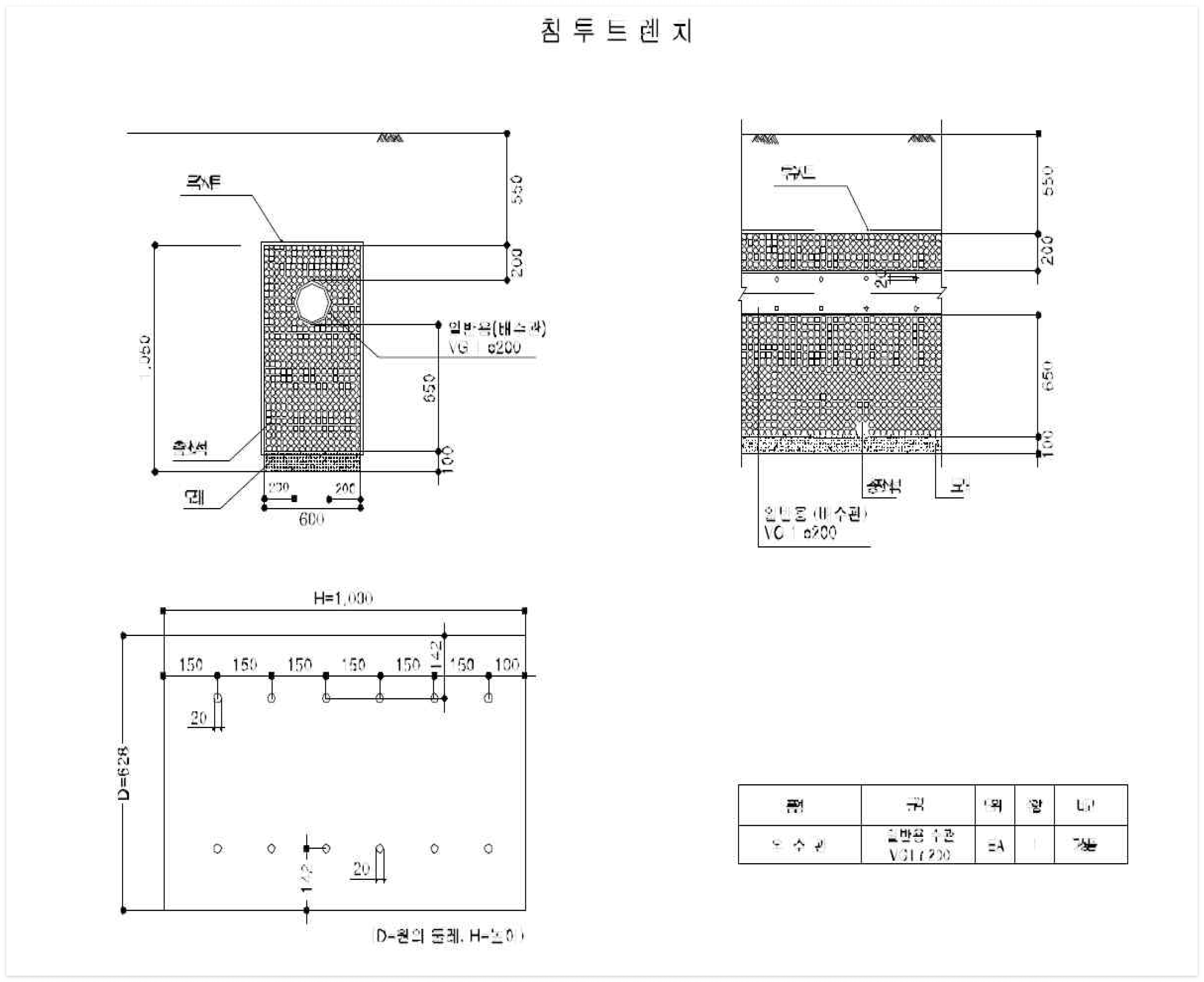
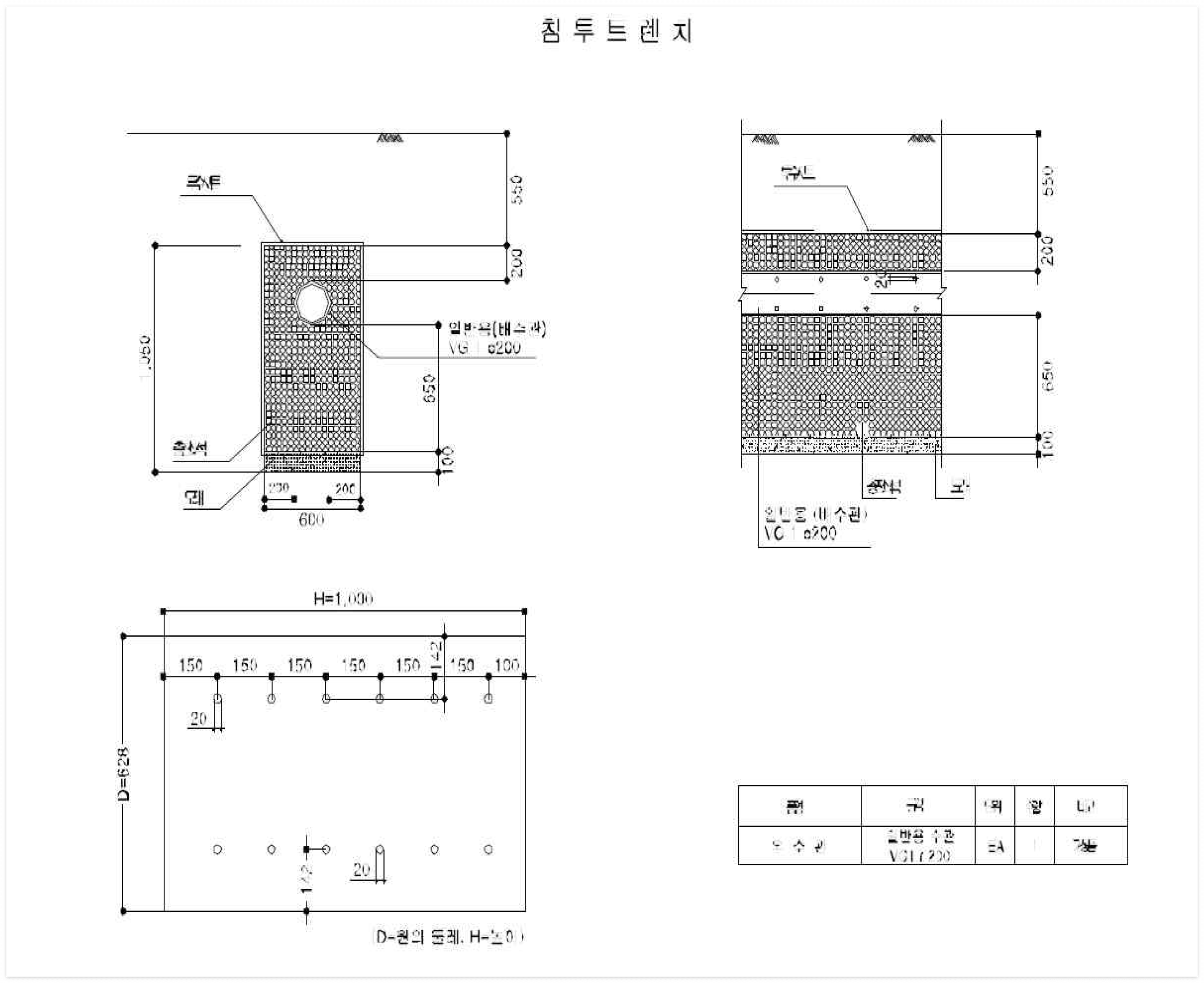
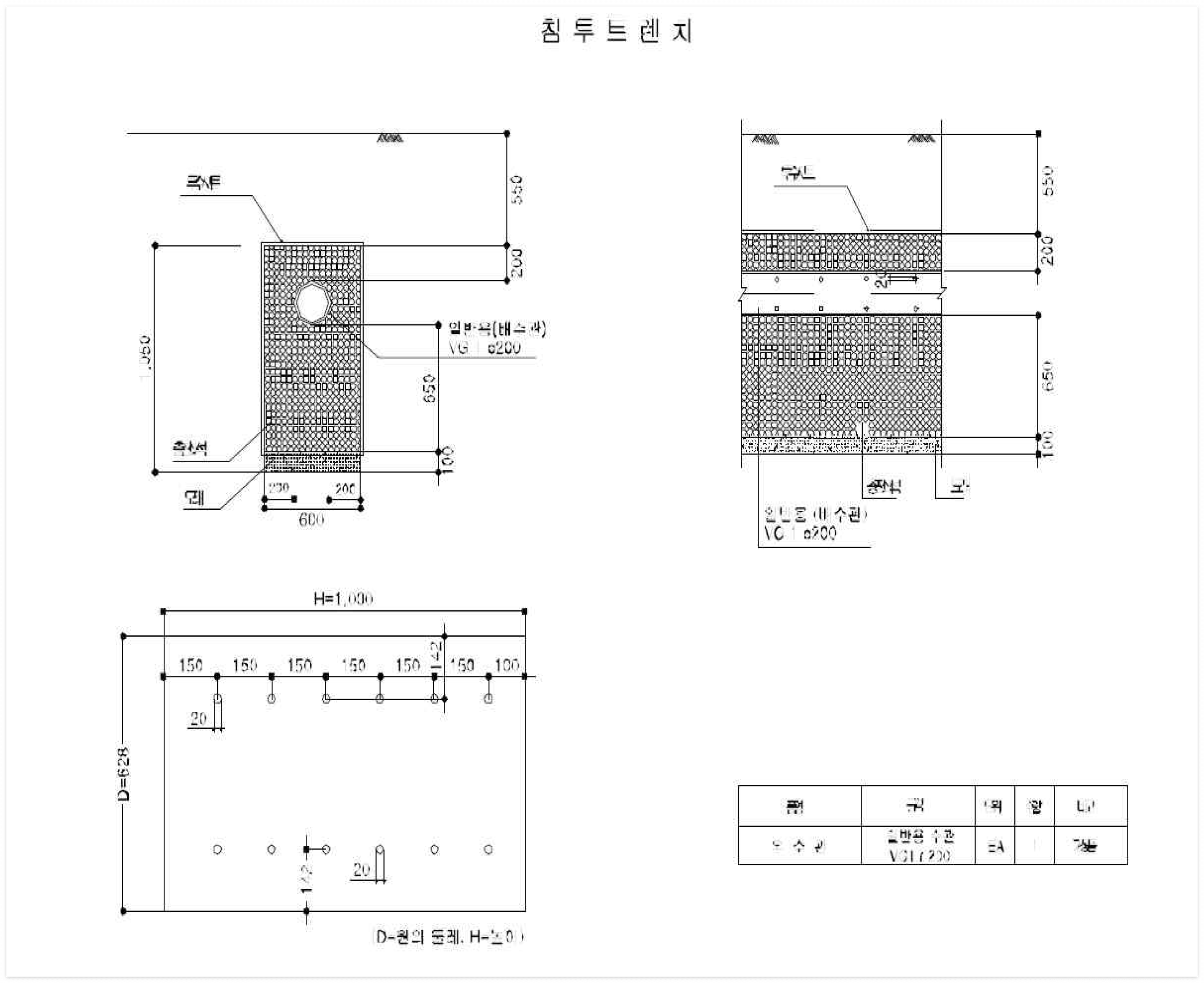
(4) 구성
투수관
투수관은 원형 또는 계란형이 많으며, 재질은 콘크리트 또는 염화 비닐을 표준으로 하며, 관의 형태에 따라 유공경, 개공률, 투수계수, 관저부 구성 등을 고려하여야 한다.
투수구조는 유공관 또는 다공관을 표준으로 한다. 유공관의 경우에 있어서는 유공경은 충전재의 입도롤 고려하여 20mm 이하로 하고, 개공률은 장기적으로 투수를 저해하지 못하도록 0.5% 이상을 표준으로 한다. 다공관의 경우 투수계수는 3 × 10-1 cm/s 이상을 표준으로 한다. 또한 관저부는 오염물질이 쇄석으로 유입되는 것을 방지하기 위하여 투수구조로 하지 않는 것을 원칙으로 한다.

모래
모래는 굴착 바닥면의 침투면이 다짐으로 인하여 침투능력이 저하된 현상을 방지하기 위해 사용된다. 모래 선정시 종류, 설치시 모래 두께, 지반특성 등에 유의하여 설치하도록 한다.
모래는 강모래, 바다모래, 산모래 등을 사용하며, 거친면이 씻겨진 모래를 사용하는 것이 바람직하며, 시설내의 저류량의 산정에 사용하는 설계공극률은 25% 정도로 한다. 모래의 두께는 50~100mm를 표준으로 하며, 모래는 지반이 사력 또는 사질토인 경우 설치하지 않는 것이 좋다.
충진쇄석
시설본체와 침투면(굴삭면)사이에 충전되는 쇄석은 침투면의 보호와 저류량 및 설계수두의 확보를 도모하기 위하여 사용되므로 재료 선정시 입도, 종류, 쇄석 형상, 충전높이 등을 고려하여야 한다.
충전쇄석의 일반적인 사항은 침투통의 내용과 같다. 다만 충전쇄석의 폭 및 충전높이, 기타내용은 다음과 같이 고려하여야 한다.
① 충전쇄석의 폭은 소형 굴착기의 버킷 폭을 고려하여 600mm 정도를 표준으로 하며 부지가 좁은 경우와 같이 제약이 있는 경우에는 300mm 정도를 최소 치수로 한다.
② 충전높이는 설계수두에 의해 결정하는 것으로 하며 500 ~ 1,000mm를 표준으로 한다.
③ 쇄석의 상부 토지이용에 따라 결정하는 것으로 하며 녹지 등은 지반으로부터 150mm 정도 이상을 확보하는 것이 좋다.
투수시트
투수시트는 토사가 쇄석안으로 유입되는 것을 막음과 동시에 지면의 함몰을 막기 위해 사용되며, 시트내 인장강도, 투수계수, 두께, 재질 등을 고려하여야 한다.
투수시트의 일반적은 사항은 침투통의 내용과 같다.
관입구 필터
관입구 필터는 투수관으로의 쓰레기 등의 유입 방지를 목적으로 사용되며, 필터의 mesh 및 쓰레기 등의 투과율 등을 고려하여야 한다.
관입구 필터의 mesh(1인치 간격내에 있는 망의 수)는 4 ~ 5개를 표준으로 하며, 청소간격은 쓰레기 등의 투과율을 고려하여 결정한다.
(5) 시공
침투트렌치의 시공방법은 침투통의 시공방법과 유사하므로 침투통의 시공편을 참고하기로 한다.
침투트렌치의 경우 단독설치보다는 침투통과의 연계 설치가 거의 대부분이므로 시공방법은 침투통의 시공편으로 대체하여도 무방하다.
![]() |
![]() |
| 굴착 모습 | 굴착 완료 |
(6) 유지관리
침투능력 확인
준공에 있어서 몇 개의 시설을 선정한 후 주입시험을 실시하여 침투능력을 확인하도록 한다.
주입시험은 KS F 2322 규정에 의한 정수위법을 원칙으로 하지만 부득이한 경우에는 변수위법을 따른다.
유지관리
점검내용은 기능점검과 안전점검으로 분리할 수 있으며, 점검시에는 각각의 점검항목에 맞게 실시하여야 한다. 청소 및 기능확인은 침투능력에 영향이 없도록 유의하여야 한다.
① 침투트렌치의 점검항목으로는 점검년월일, 점검자 성명, 책임자, 점검장소, 총괄점검평가 및 침투트렌치의 내부, 외견상의 평가, 필요한 조치 등을 기재하여야 한다.
② 트렌치 청소의 경우 접속부의 통이나 관구필터의 청소시 중점적으로 행하며, 관구필터는 인력으로, 투수관은 고압세정기 등을 이용하여 행한다.
출처 : 우수유출저감시설의 종류·구조·설치 및 유지관리 기준
'자료실 > 수자원공학' 카테고리의 다른 글
| 투수 시멘트 콘크리트 포장 시공 및 유지관리 (0) | 2023.06.26 |
|---|---|
| 침투측구의 시공 및 유지관리 (0) | 2023.06.26 |
| 침투통의 시공 및 유지관리 (0) | 2023.06.23 |
| 침투시설의 배치계획 (0) | 2023.06.23 |
| 침투트렌치의 CN (0) | 2023.06.22 |

