LID 기술요소 침투통, 침투빗물받이 설계기준
- 자료실/수자원공학
- 2024. 10. 29.
반응형

LID 기술요소 침투통, 침투빗물받이 설계기준
1. 개요
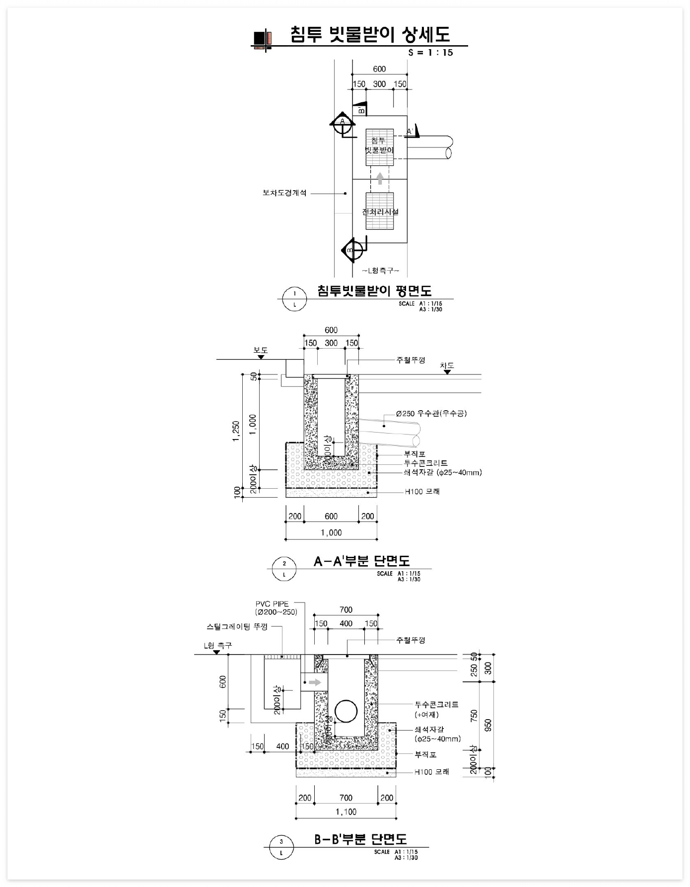
- 불투수층의 우수유출 저감 및 비점오염 저감을 위하여 설치하는 시설로서 각형, 원형 등의 형상으로 투수성을 가지는 통 본체와 주변을 쇄석으로 충진하여 집수한 빗물을 측면 및 바닥에서 땅속으로 침투시키는 기술요소이다. 침투통은 주로 건물 옥상에서 유출되는 빗물을 지중으로 침투시키는 형태로 설치된다. 침투빗물받이는 도로 L형 측구에 설치된 빗물받이 대체용으로 활용되고 있으며 도로 배수시설과 연계하여 적용한다
![]() |
![]() |
| 침투통(원형) 구조 | 침투빗물받이 구조 |
2. 적용 시 고려사항
- 침투통은 단독주택이나 공동주택 등 주거지역의 지붕 유출수를 처리하기 위하여 집수정 대체용으로 설치된다.
- 침투빗물받이는 도로 L형측구 빗물받이를 대체하여 침투빗물받이로 사용되고 있으며 공원, 기타 공공시설에 주로 많이 적용되고 있다. 도로의 빗물받이 대체용으로 활용할 경우에는 기존 빗물받이 간격과 동일하게 설치하되 집수면적을 고려한 설치용량을 검토하여 적용하여야 한다.
3. 세부 설계기준
가. 구조형식 기준
- 침투시설에 적합한 토성 : 양토(loam), 사질양토(sandy loam), 양질양토(loamy sand)
- 하부토양 침투율 : 13~210mm/hr
- 지하수위 이격거리 : 최고 지하수위 또는 기반암으로부터 수직으로 최소 1.2m 이상
- 유지관리 용이성을 위하여 전처리 시설을 설치(토사유입이 없는 경우 제외가능)
- 침투통 및 침투빗물받이 규격 : 설계 강우량을 충분히 처리할 수 있는 규격을 선정하여 설치하며, 침투빗물받이의 전처리조는 전체 용량의 50% 이상으로 하며, 퇴적물 제거가 용이한 구조로 설치하여야 한다.
- 유공일 경우 : 개공율 0.5% 이상
- 다공성일 경우 : 투수계수 3×10-1cm/s 이상
나. 용량설계 기준 : 침투도랑 용량설계 기준 적용


출처 : 저영향개발기법(LID)설계 가이드라인
반응형
'자료실 > 수자원공학' 카테고리의 다른 글
| LID 기술요소 빗물통 설계기준 (0) | 2024.10.31 |
|---|---|
| LID 기술요소 투수성 포장 설계기준 (0) | 2024.10.30 |
| LID 기술요소 침투측구 설계기준 (0) | 2024.10.28 |
| LID 기술요소 침투도랑 설계기준 (0) | 2024.10.28 |
| LID 기술요소 침투트렌치 설계기준 (0) | 2024.10.24 |

